Tiny House plans for Sale | Vermont Architect - Robert ...
Tiny House Plan for Sale

tiny houses – small dwellings of every shape and size
a variety of house plans

Small House Plans and Homes
Small House Plans and Homes

How Much Should Tiny House Plans Cost? « The Tiny Life
How Much Should Tiny House

The Small House Project — Free Tiny Home Plans | Coming Unmoored ...
Free Tiny Home Plans

TINY HOUSE PLANS | BEAUTIFUL HOUSES PICTURES
TINY HOUSE PLANS 1

8×16 Free Tiny House Plans | Tiny House Design
Download Free House Plans

8×16 Free House Plans Coming Along Nicely | Tiny House Design
8×16 Free House Plans Coming

Free tiny houses for everyone ! | Kevinsmicrohomestead Blog
have a free tiny house.

TINY HOUSE PLANS | BEAUTIFUL HOUSES PICTURES
TINY HOUSE PLANS 5

Tiny House Plans | The House Designers Blog
Tiny House Plans

Tiny House Plans
Tiny House Plans

Advantages of Having Tiny House | Smart Home Decorating Ideas
Tiny House Plans

TINY HOUSE PLANS | BEAUTIFUL HOUSES PICTURES
TINY HOUSE PLANS 3

Small House Plans and Homes
Small House Plans and Homes

Alaska Cabins & Houses
House, Small House Plans

Tumbleweed's $99 House Plan | This Tiny House
from Tumbleweed Tiny House

Cusato Cottages cusato-cottage-kc-308 – Tiny House Design
Tiny House Design

Tiny House Kits | Mini Cabins | Micro Cabins
mini cabin, tiny house,

My top 5 favorite Tumbleweed Tiny House designs | This Tiny House
the teeny tiny houses,

Small house plans should maximize space and have low building costs.
small house plans, small home

tiny houses – small dwellings of every shape and size
the small wee house adds a

Tiny House Plans | The House Designers Blog
two-story tiny house plan

Small Home Design PlansInterior Decorating,Home Design-Sweet Home
Small House Plans Tiny House

Island Features
Tiny House: The smallest

How to get Tumbleweed Popomo Plans Free
Getting the Popomo tiny house

More Sketches of the Tiny Simple House | Tiny House Design
tiny-simple-house-floor-plan

California-style Bungalow - Vintage small house plans - 780 sq. ft ...
little house with small

Nine Tiny Feet
on Tiny House Design.

tiny-house tiny-house – Tiny House Listings
tiny-house

Tumbleweed Tarleton Tiny House
tarleton tiny house floor

Build this tiny house
House tiny house plans.

Tiny House Plans | My Life ½ Price
My tiny house plans!

Tiny Houses & Little Lots: Floor Plans for Very Small Homes ...
Tiny Houses & Little Lots:

Drummond House Plans » Carriage House Plans
Drummond House Plans - Tiny

Tiny House Plans
Tiny House Plans

Cherokee Cabin Company – Tiny House Plans | Tiny House Design
Plans are suitable for
Tiny House Plan for Sale
tiny houses – small dwellings of every shape and size
a variety of house plans
Small House Plans and Homes
Small House Plans and Homes
How Much Should Tiny House Plans Cost? « The Tiny Life
How Much Should Tiny House
The Small House Project — Free Tiny Home Plans | Coming Unmoored ...
Free Tiny Home Plans
TINY HOUSE PLANS | BEAUTIFUL HOUSES PICTURES
TINY HOUSE PLANS 1

8×16 Free Tiny House Plans | Tiny House Design
Download Free House Plans
8×16 Free House Plans Coming Along Nicely | Tiny House Design
8×16 Free House Plans Coming
Free tiny houses for everyone ! | Kevinsmicrohomestead Blog
have a free tiny house.
TINY HOUSE PLANS | BEAUTIFUL HOUSES PICTURES
TINY HOUSE PLANS 5

Tiny House Plans | The House Designers Blog
Tiny House Plans
Tiny House Plans
Tiny House Plans
Advantages of Having Tiny House | Smart Home Decorating Ideas
Tiny House Plans
TINY HOUSE PLANS | BEAUTIFUL HOUSES PICTURES
TINY HOUSE PLANS 3

Small House Plans and Homes
Small House Plans and Homes
Alaska Cabins & Houses
House, Small House Plans
Tumbleweed's $99 House Plan | This Tiny House
from Tumbleweed Tiny House
Cusato Cottages cusato-cottage-kc-308 – Tiny House Design
Tiny House Design
Tiny House Kits | Mini Cabins | Micro Cabins
mini cabin, tiny house,
My top 5 favorite Tumbleweed Tiny House designs | This Tiny House
the teeny tiny houses,
Small house plans should maximize space and have low building costs.
small house plans, small home
tiny houses – small dwellings of every shape and size
the small wee house adds a
Tiny House Plans | The House Designers Blog
two-story tiny house plan
Small Home Design PlansInterior Decorating,Home Design-Sweet Home
Small House Plans Tiny House
Island Features
Tiny House: The smallest
How to get Tumbleweed Popomo Plans Free
Getting the Popomo tiny house
More Sketches of the Tiny Simple House | Tiny House Design
tiny-simple-house-floor-plan
California-style Bungalow - Vintage small house plans - 780 sq. ft ...
little house with small
Nine Tiny Feet
on Tiny House Design.
tiny-house tiny-house – Tiny House Listings
tiny-house
Tumbleweed Tarleton Tiny House
tarleton tiny house floor
Build this tiny house
House tiny house plans.
Tiny House Plans | My Life ½ Price
My tiny house plans!
Tiny Houses & Little Lots: Floor Plans for Very Small Homes ...
Tiny Houses & Little Lots:
Drummond House Plans » Carriage House Plans
Drummond House Plans - Tiny
Tiny House Plans
Tiny House Plans
Cherokee Cabin Company – Tiny House Plans | Tiny House Design
Plans are suitable for
House Plans and Designs Home

LV.jpg
A Small House Plan - Rocio

Tiny House Plans and Construction Book Sale with Dan Louche
tiny living tiny house plans

New Tiny Home Blueprints | Coming Unmoored -- Life in a Tiny ...
tumbleweed tiny house weebee

Learn to build a tiny home with straw bales, Hands-On! | StrawBale.
house or a tiny house,

Free Plans – 8×8 Tiny House v.2 | Tiny House Design
free-tiny-house-floor-plan

Tiny House Plans Planning a Minimalist House by Small Houses Plans ...
Tiny House Plans

Find Small House Plans, Cottage House Plans and Cabin House Plans
Small House Plans For Weekend

Joseph Sandy » Small House Floor Plan – 350 sq. ft.
sq. ft. tiny house plan.

Tiny House Plans: Tiny Living with Dan Louche of Tiny Home Builders
dans tiny house side front

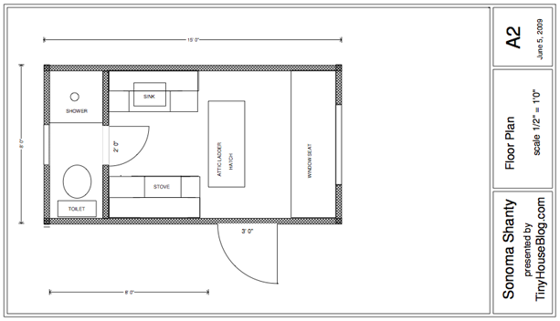
A closer look at the Sonoma Shanty tiny house plans | Tiny House ...
Shanty tiny house plans

Free Green Launches Tiny House Plans
some tiny house plans that

Tiny House Journal
Welcome to the Tiny House

Tiny Home and House Plans at eplans.com | Tiny Floor Plan Designs
Plan HWEPL75530. Tiny House

Tiny House Plans Now Available
Tiny house plans are now

LV.jpg
A Small House Plan - Rocio
Tiny House Plans and Construction Book Sale with Dan Louche
tiny living tiny house plans
New Tiny Home Blueprints | Coming Unmoored -- Life in a Tiny ...
tumbleweed tiny house weebee
Learn to build a tiny home with straw bales, Hands-On! | StrawBale.
house or a tiny house,
Free Plans – 8×8 Tiny House v.2 | Tiny House Design
free-tiny-house-floor-plan
Tiny House Plans Planning a Minimalist House by Small Houses Plans ...
Tiny House Plans
Find Small House Plans, Cottage House Plans and Cabin House Plans
Small House Plans For Weekend
Joseph Sandy » Small House Floor Plan – 350 sq. ft.
sq. ft. tiny house plan.
Tiny House Plans: Tiny Living with Dan Louche of Tiny Home Builders
dans tiny house side front
A closer look at the Sonoma Shanty tiny house plans | Tiny House ...
Shanty tiny house plans
Free Green Launches Tiny House Plans
some tiny house plans that
Tiny House Journal
Welcome to the Tiny House
Tiny Home and House Plans at eplans.com | Tiny Floor Plan Designs
Plan HWEPL75530. Tiny House
Tiny House Plans Now Available
Tiny house plans are now
0 comments :
Post a Comment